Vanzare apartament 2 camere in Baciu

Pret: 133.400 €
ID: P54767
Ma intereseaza oferta Adauga la Favorite

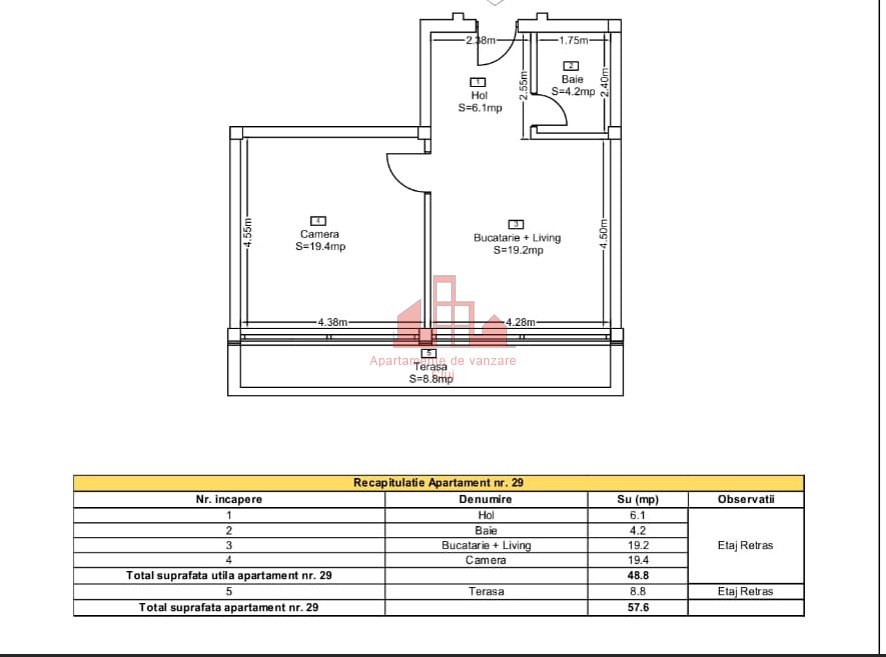
Oferim spre vanzare apartament cu 2 camere in Baciu. Apartamentul de vanzare, semidecomandat, este situat la etajul 3/2 si are 1 bucatarie, 1 baie.Garsoniera este finisat. Printre finisari se numara: Ferestre cu geam termopan (PVC, Aluminiu), Usa intrare (Metal)Dotari: Alte spatii utile (Terasa), Mobilat (Nemobilat), Dotari imobil (Interfon, Lift)

Caracteristici
Tip imobil:
Apartament
in bloc de apartamente
Numar camere:
2
Numar bucatarii:
1
Numar bai:
1
Numar garaje:
1
Parcare:
nu
Beci:
nu
Suprafata utila:
58 m2
Decomandari:
Semidecomandat
Etaj:
3/2
Construit cu:
Caramida
An constructie:
Disponibilitate:
imediat
Alte detalii zona

Va propunem spre vanzare un apartament de 2 camere cu suprafata utila de 58 mp in zona Petrom, Baciu. Apartamentul este situat la etajul retras al unui imobil cu regim de inaltime S+P+2+Er. Compartimentarea este semidecomandata si se prezinta astfel: hol intrare, living cu bucătărie de tip open-space, 1 dormitor, 1 baie si o terasa de 8mp . Apartamentul se vinde gata finisat dispune de incalzire in pardoseala si geamuri cu trei sticle. Imobilul este dotat cu lift si este situat intr-o zona cu acces facil la puncte de interes precum statie de autobuz, magazine, sala de fitness. De asemenea exista și 1 loc de parcare subteran care sde poate achizitiona la pretul de 15000 euro. Pentru mai multe detalii sau pentru stabilirea unei vizionari nu ezitati sa ne contactati.

Oferte similare

  • Vanzare apartament 2 camere in Floresti

    Vanzare apartament 2 camere in Floresti ID: P53314
    2 camere, 1 bucatarie, 1 baie, 49 m2
    Adauga la Favorite detalii
  • Vanzare apartament 2 camere in Cluj-napoca, zona Manastur

    Vanzare apartament 2 camere in Cluj-napoca, zona Manastur ID: P51901
    2 camere, 1 bucatarie, 1 baie, 43.31 m2
    Adauga la Favorite detalii
  • Vanzare apartament 2 camere in Floresti

    Vanzare apartament 2 camere in Floresti ID: P53020
    2 camere, 1 bucatarie, 1 baie, 48 m2
    Adauga la Favorite detalii
  • Vanzare apartament 2 camere in Cluj-napoca, zona Manastur

    Vanzare apartament 2 camere in Cluj-napoca, zona Manastur ID: P48183
    2 camere, 1 bucatarie, 1 baie, 40 m2
    Adauga la Favorite detalii
  • Vanzare apartament 2 camere in Floresti

    Vanzare apartament 2 camere in Floresti ID: P53503
    2 camere, 1 bucatarie, 1 baie, 55.7 m2
    Adauga la Favorite detalii
  • Vanzare apartament 2 camere in Cluj-napoca, zona Dambul Rotund

    Vanzare apartament 2 camere in Cluj-napoca, zona Dambul Rotund ID: P44786
    2 camere, 1 bucatarie, 1 baie, 51 m2
    Adauga la Favorite detalii