Vanzare apartament 2 camere in Cluj-napoca, zona Zorilor

Pret: 153.000 €
ID: P53252
Ma intereseaza oferta Adauga la Favorite

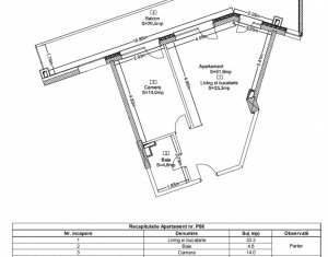
Oferim spre vanzare apartament cu 2 camere in Cluj-napoca, zona Zorilor. Apartamentul de vanzare, confort 1 semidecomandat, este situat la parter/14 si are 1 bucatarie, 1 baie, 1 balcon.Printre finisari se numara: Izolatii termice (Bloc izolat termic), Rulouri/Obloane (PVC), Usa intrare (Metal)Dotari: Alte spatii utile (Terasa), Contorizare (Apometre), Mobilat (Nemobilat), Dotari imobil (Videointerfon, Lift, Gradina), Diverse (Sistem de alarma)

Caracteristici
Tip imobil:
Apartament
in bloc de apartamente
Numar camere:
2
Numar bucatarii:
1
Numar bai:
1
Numar balcoane:
1
Parcare:
nu
Beci:
nu
Suprafata construita:
88 /m2
Suprafata utila:
52 m2
Decomandari:
Semidecomandat
Confort:
1
Etaj:
parter/14
Construit cu:
Beton
An constructie:
Disponibilitate:
imediat
Alte detalii zona

Oferim spre vânzare un apartament modern situat în ansamblul rezidențial Wings, cartier Zorilor, Cluj-Napoca. Apartament 2 camere 52mp, living si bucatarie open space, dormitor cu iesire pe terasa, baie spațioasă, centrală pe gaz și încălzire în pardoseala, terasă, orientare Est. . SEMIFINISAT Intabulat cu carte funciară – disponibil imediat, se poate accesa credit ipotecar Posibilitate achiziție loc de parcare: 15.000 EUR

Oferte similare

  • Vanzare apartament 2 camere in Cluj-napoca, zona Manastur

    Vanzare apartament 2 camere in Cluj-napoca, zona Manastur ID: P43460
    2 camere, 1 bucatarie, 1 baie, 51 m2
    Adauga la Favorite detalii
  • Vanzare apartament 2 camere in Cluj-napoca, zona Manastur

    Vanzare apartament 2 camere in Cluj-napoca, zona Manastur ID: P50712
    2 camere, 1 bucatarie, 1 baie, 49 m2
    Adauga la Favorite detalii
  • Vanzare apartament 2 camere in Cluj-napoca, zona Zorilor

    Vanzare apartament 2 camere in Cluj-napoca, zona Zorilor ID: P53252
    2 camere, 1 bucatarie, 1 baie, 52 m2
    Adauga la Favorite detalii
  • Vanzare apartament 2 camere in Floresti

    Vanzare apartament 2 camere in Floresti ID: P49973
    2 camere, 1 bucatarie, 1 baie, 53 m2
    Adauga la Favorite detalii
  • Vanzare apartament 2 camere in Cluj-napoca, zona Gheorgheni

    Vanzare apartament 2 camere in Cluj-napoca, zona Gheorgheni ID: P48089
    2 camere, 1 bucatarie, 1 baie, 44 m2
    Adauga la Favorite detalii
  • Vanzare apartament 2 camere in Cluj-napoca, zona Manastur

    Vanzare apartament 2 camere in Cluj-napoca, zona Manastur ID: P51308
    2 camere, 1 bucatarie, 1 baie, 45 m2
    Adauga la Favorite detalii