Vanzare apartament 3 camere in Cluj-napoca, zona Zorilor

Pret: 206.261 €
ID: P49107
Ma intereseaza oferta Adauga la Favorite

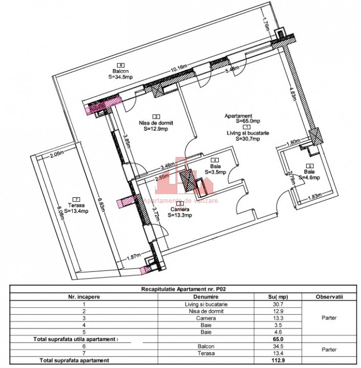
Oferim spre vanzare apartament cu 3 camere in Cluj-napoca, zona Zorilor. Apartamentul de vanzare, confort 1 semidecomandat, este situat la parter/14 si are 1 bucatarie, 2 bai, 1 balcon.Printre finisari se numara: Izolatii termice (Bloc izolat termic), Rulouri/Obloane (PVC), Usa intrare (Metal)Dotari: Alte spatii utile (Terasa), Contorizare (Apometre), Mobilat (Nemobilat), Dotari imobil (Videointerfon, Lift, Gradina), Diverse (Sistem de alarma)

Caracteristici
Tip imobil:
Apartament
in bloc de apartamente
Numar camere:
3
Numar bucatarii:
1
Numar bai:
2
Numar balcoane:
1
Parcare:
nu
Beci:
nu
Suprafata construita:
125 /m2
Suprafata utila:
65 m2
Decomandari:
Semidecomandat
Confort:
1
Etaj:
parter/14
Construit cu:
Beton
An constructie:
Disponibilitate:
imediat
Alte detalii zona

Pret total apartament 206.261 euro, nu se aplica taxe suplimentare Intabulat cu carte funciară – disponibil imediat, se poate accesa credit ipotecar Posibilitate achiziție loc de parcare: 15.000 EUR Apartament 3 camere 65mp utili, 2 dormitoare, 2 bai, living si bucatarie open space. Terasa 13.4mp si balcon 34.5mp. SEMIFINISAT Oferim spre vânzare un apartament modern situat în ansamblul rezidențial Wings, cartier Zorilor, Cluj-Napoca. Proiectul este unul dintre cele mai apreciate din oraș, remarcat pentru designul arhitectural deosebit, materialele de calitate superioară și confortul oferit locatarilor Arhitectură modernă, premiată Spații verzi și zone comune elegante Lifturi rapide, parcări subterane și supraterane Acces facil către centrul orașului, UMF, clinici și spitale, transport în comun Oportunitate de investiție: Datorită amplasării și calității proiectului, apartamentul este ideal atât pentru locuință proprie, cât și pentru investiție – închiriere pe termen lung sau regim hotelier (zonă cu cerere ridicată). Pentru mai multe detalii și programare vizionare, vă stau la dispoziție.

Oferte similare

  • Vanzare apartament 3 camere in Floresti

    Vanzare apartament 3 camere in Floresti ID: P41734
    3 camere, 1 bucatarie, 1 baie, 110 m2
    Adauga la Favorite detalii
  • Vanzare apartament 3 camere in Cluj-napoca, zona Marasti

    Vanzare apartament 3 camere in Cluj-napoca, zona Marasti ID: P45634
    3 camere, 1 bucatarie, 1 baie, 63 m2
    Adauga la Favorite detalii
  • Vanzare apartament 3 camere in Cluj-napoca, zona Gheorgheni

    Vanzare apartament 3 camere in Cluj-napoca, zona Gheorgheni ID: P50217
    3 camere, 1 bucatarie, 1 baie, 65 m2
    Adauga la Favorite detalii
  • Vanzare apartament 3 camere in Floresti

    Vanzare apartament 3 camere in Floresti ID: P50177
    3 camere, 1 bucatarie, 2 bai, 86 m2
    Adauga la Favorite detalii
  • Vanzare apartament 3 camere in Floresti

    Vanzare apartament 3 camere in Floresti ID: P41909
    3 camere, 1 bucatarie, 1 baie, 54.63 m2
    Adauga la Favorite detalii
  • Vanzare apartament 3 camere in Cluj-napoca, zona Marasti

    Vanzare apartament 3 camere in Cluj-napoca, zona Marasti ID: P41990
    3 camere, 1 bucatarie, 2 bai, 99 m2
    Adauga la Favorite detalii