Vanzare apartament 3 camere in Floresti

Pret: 140.000 €
ID: P50881
Ma intereseaza oferta Adauga la Favorite

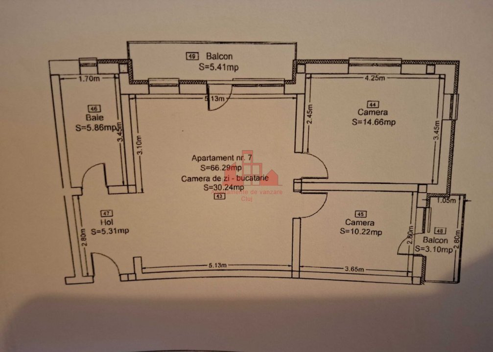
Oferim spre vanzare apartament cu 3 camere in Floresti, zona Subcetate. Apartamentul de vanzare, confort 1 decomandat, este situat la etajul 1/3 si are 1 bucatarie, 1 baie, 2 balcoane.Garsoniera este finisat. Printre finisari se numara: Izolatii termice (Exterior), Pereti (Vopsea lavabila), Podele (Parchet, Gresie)Dotari: Bucatarie (Mobilata, Utilata), Dotari imobil (Interfon), Electrocasnice (Masina de spalat rufe, Frigider, Aragaz)

Caracteristici
Tip imobil:
Apartament
Numar camere:
3
Numar bucatarii:
1
Numar bai:
1
Numar balcoane:
2
Numar garaje:
1
Parcare:
da
Beci:
nu
Suprafata construita:
80 /m2
Suprafata utila:
67 m2
Decomandari:
Decomandat
Confort:
1
Etaj:
1/3
Disponibilitate:
imediat
Alte detalii zona

Apartamente Cluj are placerea sa va ofere spre vânzare un apartament spațios, cu o suprafață utilă de 67 mp, completat de două balcoane, dintre care unul este închis – ideal pentru spațiu de relaxare sau depozitare suplimentară. Imobilul este situat la etajul 1 din 3, într-o zonă liniștită, aproape de Parcul Poligon – perfect pentru familii sau persoane care apreciază liniștea și proximitatea spațiilor verzi. Apartamentul se vinde mobilat și utilat complet, exact cum se vede in poze, însă există și opțiunea de a păstra doar ceea ce este necesar, în funcție de preferințele cumpărătorului. Opțional: Se poate achiziționa împreună cu un garaj subteran, ideal pentru protecția mașinii în sezonul rece și pentru un plus de confort. Pretul garajului este de 10.000 euro, negociabil. Zonă liniștită, acces facil la transport public, magazine și spații de recreere. Pentru mai multe detalii sau o vizionare, nu ezitați să ne contactați!

Oferte similare

  • Vanzare apartament 3 camere in Cluj-napoca, zona Manastur

    Vanzare apartament 3 camere in Cluj-napoca, zona Manastur ID: P51667
    3 camere, 1 bucatarie, 1 baie, 48 m2
    Adauga la Favorite detalii
  • Vanzare apartament 3 camere in Cluj-napoca, zona Manastur

    Vanzare apartament 3 camere in Cluj-napoca, zona Manastur ID: P48610
    3 camere, 1 bucatarie, 1 baie, 48 m2
    Adauga la Favorite detalii
  • Vanzare apartament 3 camere in Cluj-napoca, zona Manastur

    Vanzare apartament 3 camere in Cluj-napoca, zona Manastur ID: P51363
    3 camere, 1 bucatarie, 1 baie, 50 m2
    Adauga la Favorite detalii
  • Vanzare apartament 3 camere in Cluj-napoca, zona Manastur

    Vanzare apartament 3 camere in Cluj-napoca, zona Manastur ID: P50872
    3 camere, 1 bucatarie, 1 baie, 44 m2
    Adauga la Favorite detalii
  • Vanzare apartament 3 camere in Floresti

    Vanzare apartament 3 camere in Floresti ID: P49884
    3 camere, 1 bucatarie, 2 bai, 74.48 m2
    Adauga la Favorite detalii
  • Vanzare apartament 3 camere in Cluj-napoca, zona Centru

    Vanzare apartament 3 camere in Cluj-napoca, zona Centru ID: P44317
    3 camere, 1 bucatarie, 2 bai, 91 m2
    Adauga la Favorite detalii